Bebauungsplanes „Buchstraße“ – Aufstellungsbeschluss

13. Okt. 2025

Bebauungsplanes „Buchstraße“ – Aufstellungsbeschluss

Aufstellung eines qualifizierten Bebauungsplanes "Buchstraße“ gemäß § 1 Abs. 3 und § 2 Abs. 1 BauGB.
Hier: Frühzeitige Beteiligung der Öffentlichkeit nach § 3 Abs. 1 BauGB

Der Gemeinderat von Allershausen hat am 05.03.2024 in öffentlicher Sitzung die Aufstellung eines qualifizierten Bebauungsplanes für das Gebiet "Buchstraße" beschlossen.
Der Entwurf des Bebauungsplanes mit Begründung wurde von der Wacker Planungsgesellschaft mbH & Co. KG aus Nandlstadt ausgearbeitet und vom Gemeinderat mit Beschluss vom 23.09.2025 gebilligt.

Zudem wurde die frühzeitige Beteiligung der Öffentlichkeit gemäß § 3 Abs. 1 BauGB sowie die frühzeitige Beteiligung der Träger öffentlicher Belange gemäß § 4 Abs. 1 BauGB beschlossen.

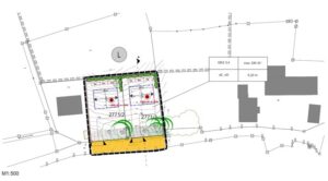
Das Plangebiet befindet sich im nordöstlichen Teil des Ortsteils Leonhardsbuch an der Buchstraße. Der Geltungsbereich hat einen Umgriff von ca. 0,24 ha und umfasst die Grundstücke Fl.Nr. 2771/2 und 2771/3, je Gemarkung Allershausen.

Es ist beabsichtigt, das Baugebiet als allgemeines Wohngebiet (WA) festzusetzen.

Ziel und Zweck der Planung:

Die Gemeinde Allershausen beabsichtigt, im nordöstlichen Teil von Leonhardsbuch die Voraussetzungen für das Ausschöpfen des Wohnraumpotentials im Ortsteil zu schaffen. Mit der Aktivierung des vorhandenen Flächenpotentials wird eine flächensparende Siedlungsentwicklung verfolgt.

Frühzeitige Beteiligung der Öffentlichkeit:

Der Öffentlichkeit sowie den berührten Behörden und sonstigen Trägern öffentlicher Belange wird im Rahmen des Bauleitplanverfahrens Gelegenheit zur Stellungnahme gegeben vom

20.10.2025 bis 23.11.2025

Die Öffentlichkeit kann sich im Rathaus Allershausen, Johannes-Boos-Platz 6, 85391 Allershausen, während der üblichen Öffnungszeiten über die allgemeinen Ziele und Zwecke sowie die wesentlichen Auswirkungen der Planung unterrichten und sich innerhalb der Frist zur Planung schriftlich oder mündlich zur Niederschrift äußern.

Datenschutz:

Die Verarbeitung personenbezogener Daten erfolgt auf der Grundlage der Art. 6 Abs. 1 Buchstabe e (DSGVO) i.V. mit § 3 BauGB und dem BayDSG. Sofern Sie Ihre Stellungnahme ohne Absenderangaben abgeben, erhalten Sie keine Mitteilung über das Ergebnis der Prüfung.

Weitere Informationen entnehmen Sie bitte dem Formblatt „Datenschutzrechtliche Informationspflichten im Bauleitplanverfahren“ das ebenfalls öffentlich ausliegt.

Der Entwurf der Bebauungsplanänderung mit Begründung kann auch im Internet auf der Homepage der Gemeinde Allershausen unter der Rubrik "Bekanntmachungen" auf www.allershausen.de eingesehen werden.

Allershausen, 10.10.2025
Vaas
Erster Bürgermeister

Ortsüblich bekannt gemacht durch Anschlag an den Amtstafeln

Sie haben Fragen oder Anregungen?

Dann kontaktieren Sie uns einfach jederzeit unter folgenden Kontaktmöglichkeiten: