Sie sind hier: Home » Einbeziehungssatzung „Moosstraße“ – Auslegung des Satzungsentwurfes
Bekanntmachung über den Erlass einer Satzung über die Einbeziehung von Außenbereichsflächen in den im Zusammenhang bebauten Ortsteil Unterkienberg (Einbeziehungssatzung „Moosstraße“)
Auslegung des Satzungsentwurfes (Öffentlichkeitsbeteiligung) nach § 34 Abs. 4 bis 4 BauGB
Der Gemeinderat Allershausen hat am 05.04.2024 in beschlossen, für den östlichen Ortsrand des Ortsteils Unterkienberg eine Satzung nach § 34 Abs. 4 Satz 1 Nr. 3 BauGB (Einbeziehungssatzung) zu erlassen. Damit soll u.a. eine vertretbare bauliche Nutzung im Planungsbereich ermöglicht und gesichert werden. Das Grundstück Fl.Nr. 1724/8 sowie Teilflächen der Flurnummern 1724/7 und 1738, je Gemarkung Allershausen, werden nach § 34 Abs. 4 Satz 1 Nr. 3 BauGB in den im Zusammenhang bebauten Ortsteil einbezogen.
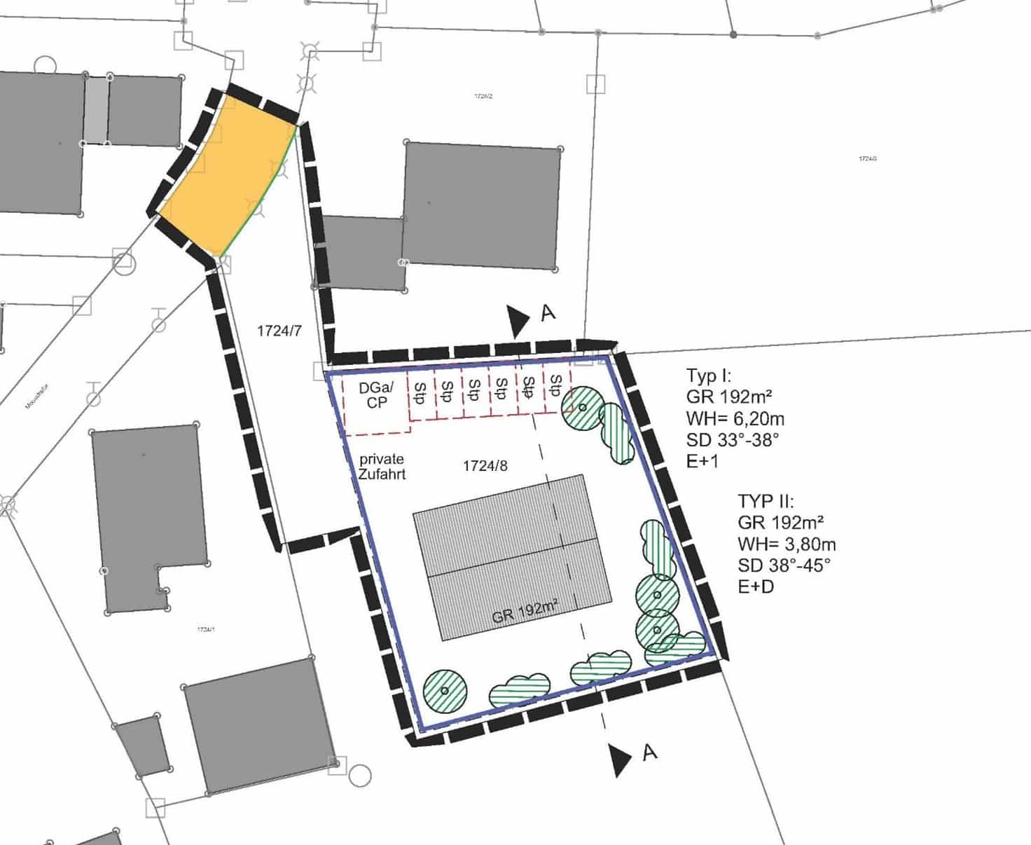
Der Geltungsbereich ergibt sich aus folgendem Kartenausschnitt:
Der Satzungsentwurf mit Begründung wurde von der Wacker Planungsgesellschaft mbH & Co. KG aus Nandlstadt ausgearbeitet und vom Gemeinderat mit Beschluss vom 23.09.2025 gebilligt.
Der Entwurf der Satzung mit Begründung liegt gemäß § 34 Abs. 6 Satz 1 i.V.m. § 13 Abs. 2 Satz 1 Nr. 2 BauGB in der Zeit vom 20.10.2025 bis 23.11.2025 während der üblichen Öffnungszeiten zur Einsichtnahme im Rathaus der Gemeinde Allershausen, Johannes-Boos-Platz 6, 85391 Allershausen, Zimmer 13, 1. Stock (barrierefrei), öffentlich aus.
Stellungnahmen können während dieser Frist schriftlich oder während der Dienststunden zur Niederschrift abgegeben werden.
Stellungnahmen, die im Verfahren der Öffentlichkeits- und Behördenbeteiligung nicht rechtzeitig abgegeben werden, können bei der Beschlussfassung gemäß § 4a Abs. 5 BauGB unberücksichtigt bleiben, sofern die Gemeinde deren Inhalt nicht kannte und nicht hätte kennen müssen und deren Inhalt für die Rechtmäßigkeit der Bauleitplanung nicht von Bedeutung ist.
Es wird darauf hingewiesen, dass von einer Umweltprüfung nach § 2 Abs. 4 BauGB abgesehen wird.
Datenschutz:
Die Verarbeitung personenbezogener Daten erfolgt auf der Grundlage der Art. 6 Abs. 1 Buchstabe e (DSGVO) i.V. mit § 3 BauGB und dem BayDSG. Sofern Sie Ihre Stellungnahme ohne Absenderangaben abgeben, erhalten Sie keine Mitteilung über das Ergebnis der Prüfung.
Weitere Informationen entnehmen Sie bitte dem Formblatt „Datenschutzrechtliche Informationspflichten im Bauleitplanverfahren“ das ebenfalls öffentlich ausliegt.
Der Entwurf der Einbeziehungssatzung mit Begründung kann auch im Internet auf der Homepage der Gemeinde Allershausen unter der Rubrik "Bekanntmachungen" auf www.allershausen.de eingesehen werden.
Allershausen, 10.10.2025
Vaas
Erster Bürgermeister
Dann kontaktieren Sie uns einfach jederzeit unter folgenden Kontaktmöglichkeiten:
Sie sehen gerade einen Platzhalterinhalt von Vimeo. Um auf den eigentlichen Inhalt zuzugreifen, klicken Sie auf die Schaltfläche unten. Bitte beachten Sie, dass dabei Daten an Drittanbieter weitergegeben werden.
Mehr InformationenSie sehen gerade einen Platzhalterinhalt von YouTube. Um auf den eigentlichen Inhalt zuzugreifen, klicken Sie auf die Schaltfläche unten. Bitte beachten Sie, dass dabei Daten an Drittanbieter weitergegeben werden.
Mehr InformationenSie müssen den Inhalt von reCAPTCHA laden, um das Formular abzuschicken. Bitte beachten Sie, dass dabei Daten mit Drittanbietern ausgetauscht werden.
Mehr InformationenSie müssen den Inhalt von hCaptcha laden, um das Formular abzuschicken. Bitte beachten Sie, dass dabei Daten mit Drittanbietern ausgetauscht werden.
Mehr InformationenSie sehen gerade einen Platzhalterinhalt von Google Maps. Um auf den eigentlichen Inhalt zuzugreifen, klicken Sie auf die Schaltfläche unten. Bitte beachten Sie, dass dabei Daten an Drittanbieter weitergegeben werden.
Mehr InformationenSie sehen gerade einen Platzhalterinhalt von Google Maps. Um auf den eigentlichen Inhalt zuzugreifen, klicken Sie auf die Schaltfläche unten. Bitte beachten Sie, dass dabei Daten an Drittanbieter weitergegeben werden.
Mehr InformationenSie sehen gerade einen Platzhalterinhalt von Mapbox. Um auf den eigentlichen Inhalt zuzugreifen, klicken Sie auf die Schaltfläche unten. Bitte beachten Sie, dass dabei Daten an Drittanbieter weitergegeben werden.
Mehr InformationenSie sehen gerade einen Platzhalterinhalt von OpenStreetMap. Um auf den eigentlichen Inhalt zuzugreifen, klicken Sie auf die Schaltfläche unten. Bitte beachten Sie, dass dabei Daten an Drittanbieter weitergegeben werden.
Mehr Informationen